| Тип | Коммерческие и офисные помещения |
| Действие | Аренда |
| Предназначение |
|
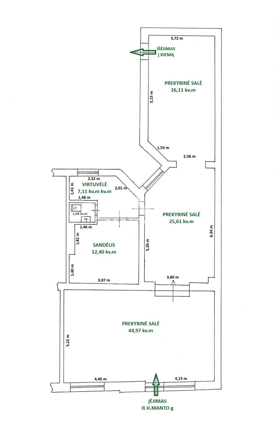
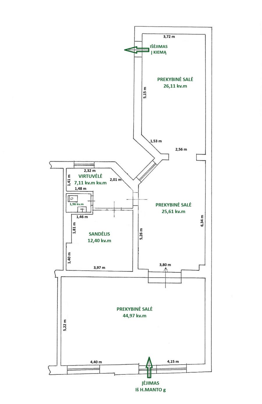
| Площадь м2 | 117,76 |
| Этаж | 1 |
| Количество этажей | 3 |
| Тип дома | Кирпичный |
| Отопление |
|
| Цена €/м2 | 14.01 |
| ID объявления | 4193 |
| Год: 1903 |
| Оборудование: полностью оборудована |
| Описание: отдельный вход; асфальтированный подъезд |
Коммерческие и офисные помещения Аренда
Этаж: 3
Площадь: 71,07 м2
Цена: 1 066 €
Коммерческие и офисные помещения Аренда
Этаж: 1
Площадь: 120 м2
Цена: 1 020 €
Коммерческие и офисные помещения Аренда
Этаж: 2
Площадь: 69,68 м2
Цена: 1 045 €