Klemiškės g. Klaipėda

Тип Квартиры
Действие Продажа
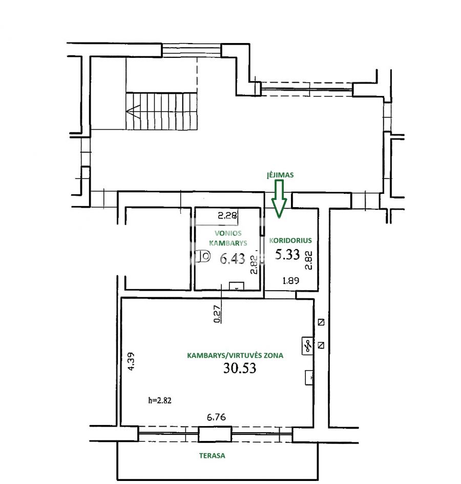
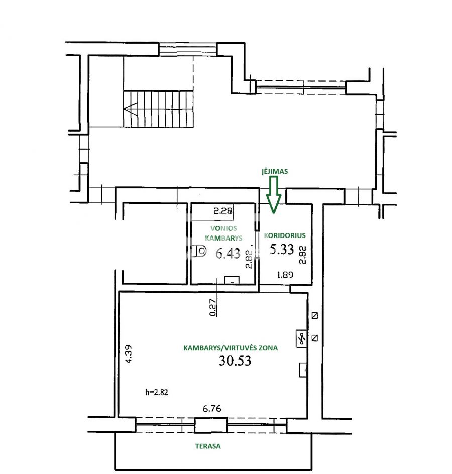
Количество комнат 1
Площадь м2 42,29
Этаж 1
Количество этажей 3
Тип дома Кирпичный
Отопление
  • газовое
Цена €/м2 3121.31
ID объявления 4190
Цена132 000 €


Дополнительная информация об объявлении :
Оборудование: полностью оборудована
Описание: комната и кухня соединенная
Дополнительные помещения: терраса
Дополнительное оборудование: мебель; кухонный комплект; посудомойка; холодильник; ванна

Panašūs objektai: